What’s Included In These Plans?
To Scale Floor Plans
To Scale Foundation Plan
To Scale Exterior Elevations
Simple Roof Plan
One Cross Section of House – As Needed
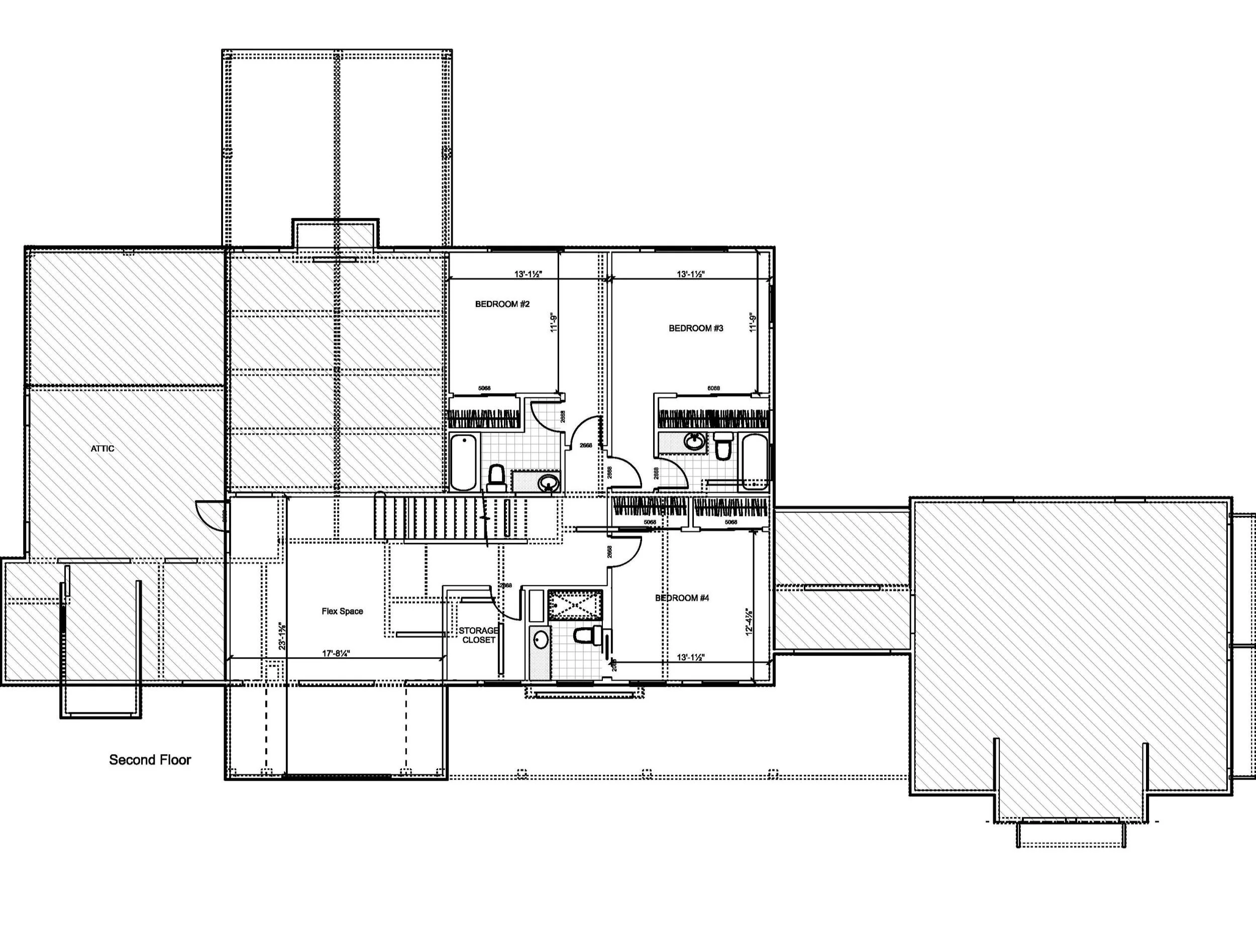
3548 SQFT
2 Story
4 Beds
5 Baths
4 Car
3548 SQFT
2 Story
4 Beds
5 Baths
4 Car
What’s Included In These Plans?
To Scale Floor Plans
To Scale Foundation Plan
To Scale Exterior Elevations
Simple Roof Plan
One Cross Section of House – As Needed